Mạch Ngừng Bê Tông Là Gì? Hướng Dẫn Xử Lý Mạch Ngừng Đúng Cách
Hạn chế số lượng mạch ngừng thi công càng ít thì càng tốt các bạn nhé. Bởi bê tông được đổ toàn khối vẫn tốt và đảm bảo hơn. Liên hệ tư vấn 0906.309.569 (Mr Nguyện)
1. Mạch ngừng là gì?
Mạch ngừng là vị trí làm gián đoạn trong thi công bê tông được bố trí ở những nơi nhất định. Tại những vị trí này lớp bê tông sau được đổ khi lớp bê tông đổ trước đó đã đông cứng.
Mạch ngừng thi công bê tông toàn khối là vị trí gián đoạn kỹ thuật, đồng thời là mối nối, trong điều kiện bất khả kháng: không thể đảm bảo điều kiện đúc bê tông liên tục, của công tác thi công bê tông toàn khối.
2. Nguồn gốc của mạch ngừng
Khi phần bê tông đã được đổ trước tại vị trí này của khối bê tông đã chuyển sang giai đoạn ninh kết và đóng rắn, thì không thể được phép đổ bê tông mới vào đó, vì nếu không sẽ làm phá vỡ vĩnh viễn các nối liên kết vừa mới hình thành trong vữa bê tông
Cần phải để cho bê tông cũ nằm ổn định trong khuôn đúc bê tông, cho đến khi bê tông cũ ninh kết và đóng rắn xong hoàn toàn, thì mới được đổ tiếp. Từ đó hình thành nên mạch ngừng tại vị trí tạm ngừng thi công này
Do mạch ngừng ảnh hưởng đến tính toàn khối của bê tông, nên tốt nhất là thi công liên tục không để mạch ngừng. Khi bắt buộc phải để, vị trí của nó phải được khống chế trong miền kết cấu có nội lực nhỏ hoặc nội lực không gây nguy hiểm cho kết cấu tại tiết diện mạch ngừng.
Để khắc phục sự giảm yếu do mạch ngừng gây ra, tại vị trí mạch ngừng có thể bổ sung thêm cốt thép gia cường mạch ngừng.
Việc thi công bê tông toàn khối trường hợp có để mạch ngừng sẽ tạo ra các đợt thi công bê tông và các phân đoạn thi công bê tông.
Vị trí mạch ngừng là vị trí giảm yếu của kết cấu bê tông cốt thép toàn khối. Do đó kích thước của mạch ngừng phải cố gắng giảm đến mức tối đa:
+ Chiều dài mạch ngừng là ngắn nhất, mạch ngừng càng thẳng, ít gấp khúc càng tốt,
+ Mặt mạch ngừng phải thẳng góc với trục kết cấu để diện tích bề mặt mạch ngừng là nhỏ nhất.
3. Lý do cắt mạch ngừng
Lý do về kĩ thuật
- Để giảm độ phức tạp trong thi công khi những kết cấu có hình dạng phức tạp, việc đổ bê tông liên tục (toàn khối ) rất khó khăn, nếu thực hiện được thì chất lượng bê tông cũng khó đạt yêu cầu.
- Ngừng để giảm co ngót, giảm ứng suất nhiệt do nhiệt thủy hóa xi măng trong thi công bê tông khối lớn có thể làm nứt bê tông.
Lý do về tổ chức
- Không phải lúc nào cung tổ chức đổ bê tông liên tục được, khi nhân lực, thiết bị thi công không cho phép dẫn đến khối lượng bê tông cung cấp (Qcc) không đáp ứng được khối lượng bê tông yêu cầu (Qyc ): Qcc < Qyc thì bắt buộc phải thi công có mạch ngừng.
- Hay vì hiệu quả kinh tế muốn tăng tỉ số quay vòng ván khuôn thì phải phân đoạn thi công và tạo mạch ngừng...).
- Do điều kiện thời tiết, khí hậu, do giữa ngày và đêm... buộc phải tạo mạch ngừng trong thi công bê tông bê tông toàn khối.
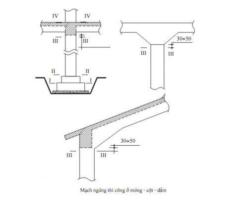
4. Vị trí mạch ngừng
► Yêu cầu trong cách tạo mạch ngừng: Mạch ngừng phải phẳng và vuông góc với phương truyền lực nén vào kết cấu.
► Đối với mạch ngừng đứng: phải có khuôn để tạo mạch ngừng.
► Đối với mạch ngừng nằm ngang nên đặt ở vị trí thấp hơn đầu mút ván khuôn một khoảng 3cm.đến 5cm.
► Nguyên tắc chung: Mạch ngừng được bố trí tại vị trí vừa thuận tiện cho thi công và kết cấu làm việc gần đúng như thiết kế. Mạch ngừng được bố trí tại những vị trí sau:
- Tại vị trí mà kết cấu có tiết diện thay đổi đột ngột.
- Tại vị trí thay đổi phương chịu lực.
- Tại vị trí có nội lực nhỏ, quan tâm đến lực cắt nhỏ
5. Hướng dẫn xử lý mạch ngừng
Khi đổ lớp bê tông tiếp theo thì mạch ngừng phải được xử lý thật kỹ để hai lớp bê tông mới và cũ bám dính vào nhau. Thường xử dụng một số biện pháp sau:
► Vệ sinh sạch và tưới nước xi măng lên bề mặt lớp bê tông cũ trước khi đổ bê tông mới.
► Đánh sờm bề mặt, đục hết những phần bê tông không đạt chất lượng nhất là trong mạch ngừng đứng, rồi tưới nước xi măng.
(Đối với mạch ngừng ngang thì sau khi đánh sờm, cho một lớp vữa xi măng mác cao dày khoảng 2÷3cm trước khi đổ bê tông mới.)
► Sử dụng các phụ gia kết dính dùng cho mạch dừng.
► Đặt sẵn lưới thép tại vị trí mạch dừng khi thi công lớp bê tông trước.
Gợi ý: Sau khi đổ bê tông nhà xưởng, và đã cắt mạch ngừng, tùy vào nhu cầu sử dụng của sàn nhà xưởng mà chủ doanh nghiệp sẽ quyết định cách thức thi công tiếp theo để bảo vệ bề mặt sàn bê tông. Thiên Sơn là công ty hoạt động trong lĩnh vực sàn nhà xưởng với kinh nghiệm trên 10 năm, chúng tôi tự hào đem đến giải pháp tối ưu nhất cho sàn nhà xưởng của bạn. Các giải pháp như sau:
- Thi công sơn epoxy
- Đánh bóng bê tông
- Thi công sơn sàn Polyurethane (PU)
♦ Tóm tắt quy trình thi công sơn epoxy
- Bước 1: Mài xử lí sàn bê tông nhằm mục đích tạo nhám và chân bám cho lớp sơn epoxy liên kết với sàn bê tông.
- Bước 2: Sàn cần được vệ sinh, hút bụi sạch sẽ.
- Bước 3: Thi công lớp sơn lót epoxy.
→ Đây là lớp sơn làm tăng cứng bề mặt sàn và tạo kết nối trung gian giữa sàn bê tông và lớp sơn epoxy.
- Bước 4: Thi công sơn epoxy tự san phẳng - lớp thứ 1.
- Bước 5: Chà ráp.
- Bước 6: Thi công sơn epoxy tự san phẳng – lớp thứ 2 (lớp hoàn thiện).
>>> Xem ngay: Quy Trình Thi Công Sơn Epoxy Nhà Xưởng Giá Rẻ
GỌI NGAY: TƯ VẤN TẬN TÌNH


